








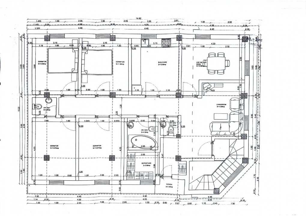
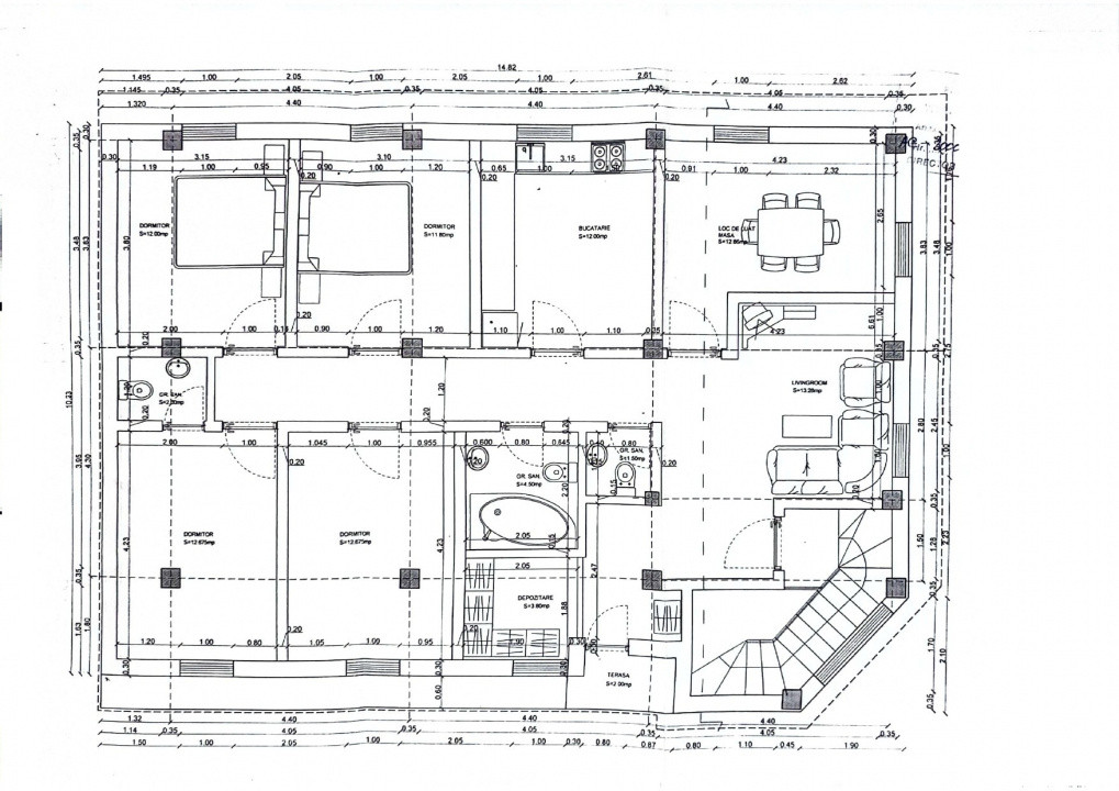
Agentia Zig-Zag va propune spre inchiriere un spatiu IDEAL desfasurarii activitatii de BIROURI, situat in zona Tomis II - Victoria - Stadion , la etajul 2 in cladire exclusiva de birouri . Suprafata de 145 mp. este compartimentata in 6 camere astfel:
- sala de asteptare
- open space
- 4 birouri/camere
- bucatarie/oficiu
- debara/loc depozitare
- 2 bai
- 2 balcoane
Dispune de toate amenajarile interioare si utilitatile necesare desfasurarii activitatii contorizate separat ( incalzire centrala gaz.)
Proprietar persoana fizica ( chirie nepurtatoare de TVA).