











Agentia Zig-Zag va oferă spre închiriere spațiu modern amplasat la parter, într-o clădire nouă (2025), ideal pentru activități de birouri sau servicii profesionale. Spațiul beneficiază de intrare separată din stradă, prin intermediul unei terase generoase, oferind independență și acces facil pentru clienți.
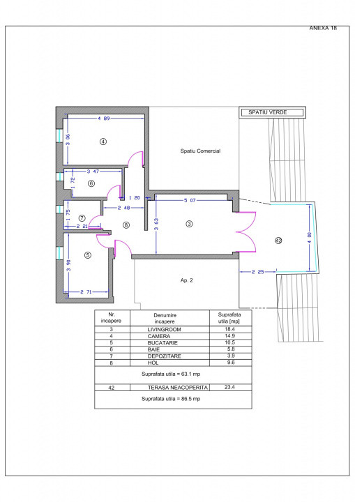
Imobilul beneficiaza de o suprafață totală de 87 mp. compartimentata astfel:
- suprafață utilă - 63 mp. - 3 camere decomandate (10 mp., 11 mp. și 18 mp.), spațiu tehnic / arhivă / depozitare – aproximativ 4 mp.,grup sanitar ;
- terasă generoasă – 21 mp., cu acces direct din stradă ;
- LOC DE PARCARE propriu, subteran/suprateran.
Caracteristici și avantaje : amplasament la parter , intrare separată, independentă de restul clădirii , terasă proprie , toate utilitatile necesare desfasurarii activitatii, refacturabile, spațiu luminos și eficient compartimentat , clădire nouă (2025), parcare proprie, acces facil .
Spațiul oferă vizibilitate, acces direct și un cadru modern pentru desfășurarea activităților profesionale : cabinet, birou servicii, firmă consultanță / contabilitate, salon / activități profesionale etc.
Proprietar persoana juridica (chirie nepurtatoare de TVA). Utilitati refacturabile.
Pentru informații suplimentare și programarea unei vizionări, vă rugăm să ne contactați.