

























Agentia Zig-Zag va ofera spre vanzare/inchiriere cladire de birouri complet amenajata, situata intr-o zona accesibila, accesibila din toate punctele de interes ale orasului .Cladirea este ideala desfasurarii activitatii in domeniu medical /clinica, sediu de firma, birouri IT, call -center, firma de contabilitate, sau alta activitate profesionala.
Suprafata totala utila de 677 mp. este strucurata pe 3 etaje , cuprinzand birouri individuale cu suprafete generoase, sala de sedinte, sala de mese, bucatarie complet echipata, camere tehnica (server), terase 5 mp., grupuri sanitare
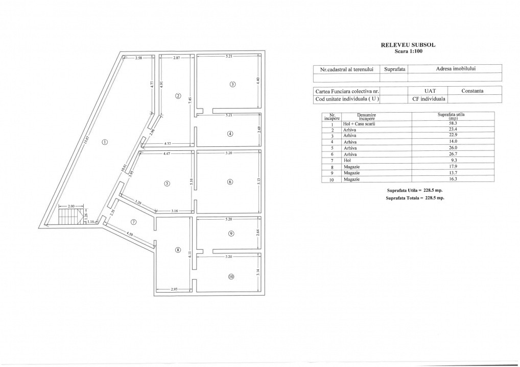
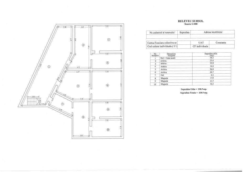
- subsol ce beneficiaza de lumina naturala din abundenta - 228 mp. - 6 birouri (16-26 mp.) , 2 grupuri sanitare, hol;
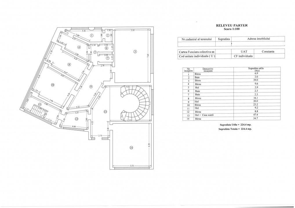
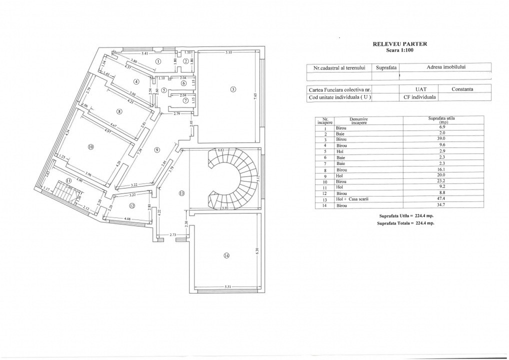
- parter - 224 mp. - 7 birouri (7-40 mp.), 3 grupuri saniatre, hol/receptie generos de 50 mp;
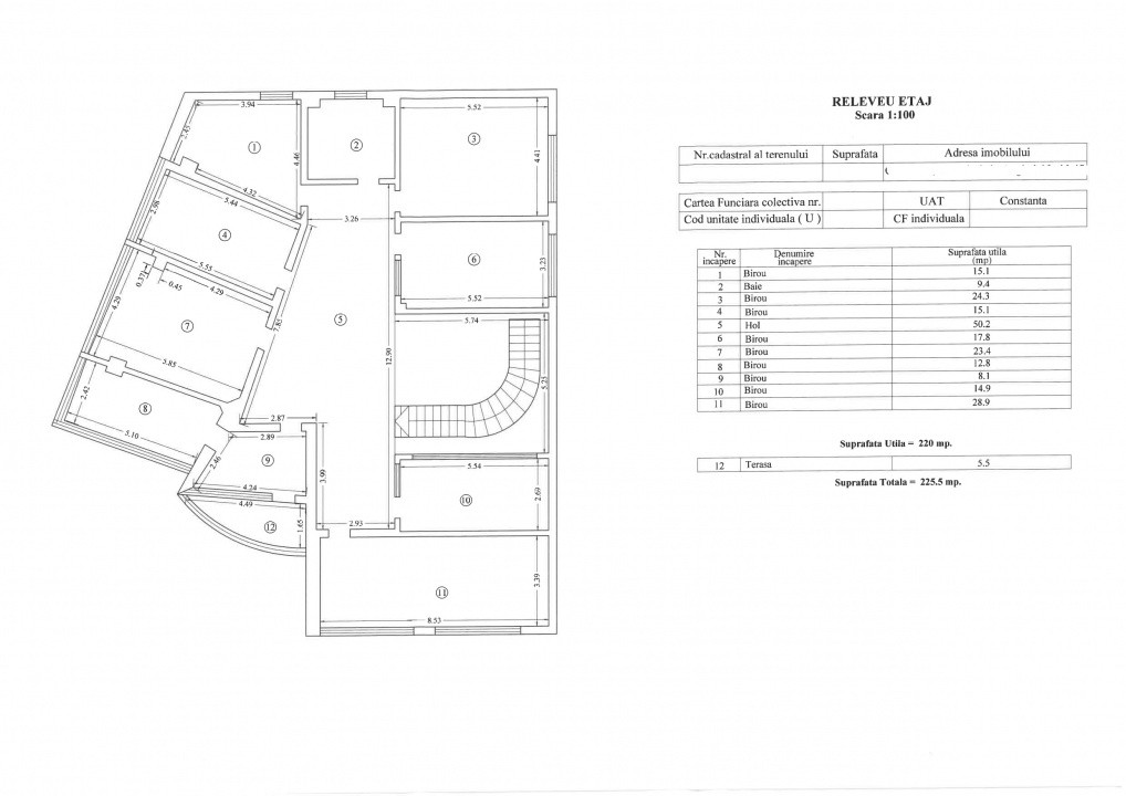
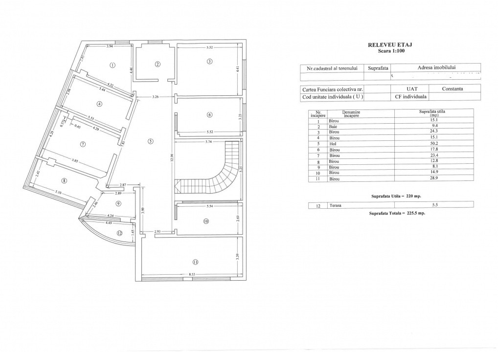
- etaj - 225 mp. - 9 birouri (10-30 mp.), 2 grupuri sanitare, hol/receptie.
Dotari si facilitati :
-centrala termica proprie
-calorifere in fiecare birou
-aer conditionat in fiecare incapere
-3 locuri de parcare
-instalatii electrice si sanitare noi
-finisaje moderne si functionale
-reamenajata complet acum 3 ani
-se vinde/inchiriaza complet mobilata si utilata
Proprietar persoana juridica.