




Agenția imobiliară Zig-Zag vă propune spre închiriere un spațiu comercial amplasat excelent în zona Dacia, pe Bulevardul Tomis – una dintre cele mai dinamice și circulate zone ale orașului, cu vad comercial format și flux constant de pietoni, recunoscută pentru densitatea rezidențială ridicată și activitatea comercială susținută, ceea ce face din acest spațiu o alegere excelentă pentru dezvoltarea unei afaceri stabile și vizibile.
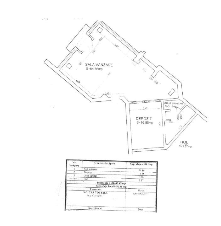
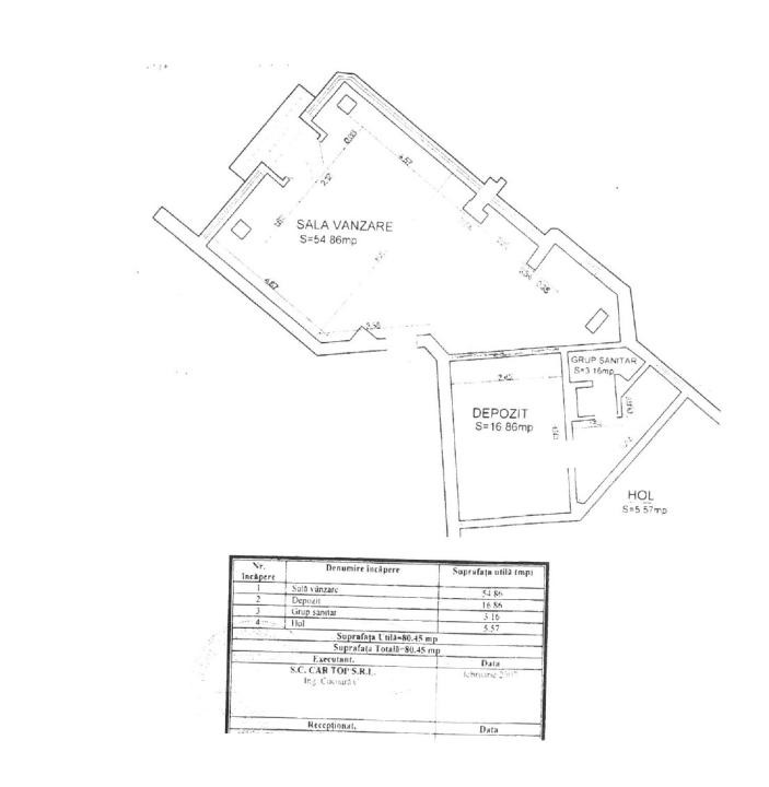
Spațiul dispune de o suprafață utilă totală de 80 mp și beneficiază de o compartimentare practică, adaptabilă mai multor tipuri de activități:
- open space generos de aproximativ 54 mp, ideal pentru zonă de vânzare, recepție sau showroom ;
- birou separat, potrivit pentru activități administrative ;
- grup sanitar propriu.
Caracteristici și avantaje:
- poziționare stradală, cu vizibilitate excelentă ;
- vitrină generoasă (fațadă vitrată), ideală pentru promovare și expunere;
- acces direct din bulevard ;
- spațiu luminos, cu potențial ridicat de personalizare ;
- toate utilitățile contorizate separat, centrală termică proprie pe gaze.
Destinații recomandate: activități comerciale (retail), showroom, sediu firmă / birouri, servicii profesionale, salon de înfrumusețare sau alte activități similare etc.
Proprietar persoană juridică (chirie nepurtătoare de TVA)
Pentru mai multe informații sau programarea unei vizionări, vă invităm să contactați agenția Zig-Zag !