










Agentia Zig-Zag va propune spre inchiriere un spatiu comercial amplasat stradal , in apropiere de Tribunal si Judecatorie, in zona Penisulara a orasului Constanta (Centru Vechi).
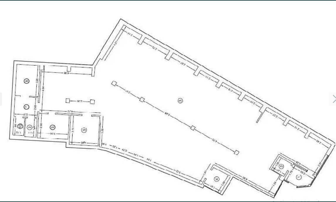
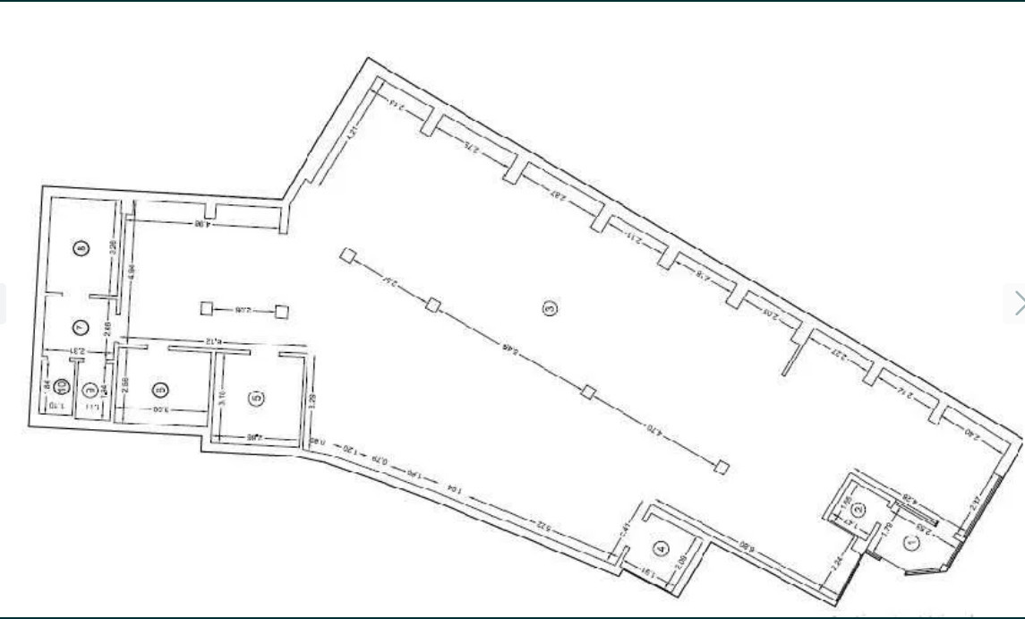
Proprietatea dispune de o suprafata generoasa de 316 mp, este open space, oferind posibilitatea de compartimentare astfel incat sa fie adaptata nevoilor fiecarui client, amplasata doar la parter , neavand deasupra vecini sau constituita asociatie de proprietari.
Spațiul este recent renovat si amenajat, dispune de toate utilitățile si dotările necesare desfașurării unei activități economice: centrala gaz, racordat retea apă , aparate aer conditionat, sistem antiincendiu. Beneficiaza de o putere electrica avizată de 100 kw, centrala pe gaz, boiler cu pompa de caldura, lift exterior necesar pentru aprovizionare cu marfa. Imobilul are instalat un sistem de panouri fotovoltaice de 24,75KW.
Locația este una de excepție, fiind în apropierea tuturor punctelor importante ale orașului, inclusiv Primăria și Consiliul Județean, Judecătoria, Tribunalul, Curtea de Apel, Muzeul de Artă, etc. De asemenea, zona este bine cunoscută pentru diversele locații HoReCa, reprezentând centrul vechi al Constanței.
Datorita pozitionarii centrale si a amenajarilor interioare , spatiul comercial este pretabil pentru o gama variata de afaceri. Este situat intr-o zonă cu acces facil la transport public, cu vizibilitate ridicată, zona fiind in principal de promenadă. Este situat într-o zonă cu acces facil la transportul public și cu vizibilitate ridicată, lângă principalele puncte de interes ale orașului, atrăgând astfel un flux constant de potențiali clienți.
Proprietar persoana juridica (pret + TVA).