














Agentia Zig-Zag va ofera spre inchiriere un spatiu comercial , cu destinatie specifica, amplasat intr o zona recent reabilitata cu multiple facilitati si locuri de parcare .
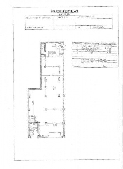
Spatiul , cu o suprafata de 650 mp., este situat la parterul (290 mp.) si etajul 1 (330 mp.) al cladirii , beneficiaza de suprafata vitrata generoasa , grupuri sanitare separate pe sexe si terasa pentru relaxare. Dispune de toate utilitatile necesare desfasurarii activitatii (apa, curent, gaze), contorizate separat.
Aditional, se poate inchiria si demisolul cu o suprafata de 220 mp., compartimentat.
Interiorul este open space si se poate compartimenta in functie de necesitatile viitorului Chirias .
Proprietar persoana fizica (chirie nepurtatoare de TVA).