








Agenția Zig-Zag vă propune spre închiriere un spațiu comercial cu poziționare strategică, amplasat direct la Bd. Tomis, în zona Tomis Plus – una dintre cele mai dinamice și în continuă dezvoltare zone ale orașului.
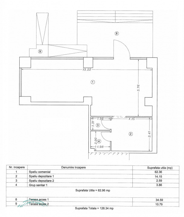
Cu o suprafață totală de 128 mp, spațiul este compus din:
- 83 mp. utili interior, open space, cu posibilitate de re/compartimentare in functie de necesitati;
- două terase generoase in proprietate, de 11 mp. și 35 mp.;
- vitrină amplă, cu deschidere de 13 ml + 6 ml.
Expunerea vitrată impresionantă oferă vizibilitate maximă și lumină naturală abundentă, asigurând un impact vizual puternic pentru orice tip de activitate comercială sau de servicii.
Configurația spațiului permite adaptarea pentru: showroom, cafenea / concept store, servicii premium, clinică / cabinet, birou reprezentativ etc.
Amplasamentul la bulevard, într-o zonă rezidențială consolidată, garantează trafic constant și potențial comercial ridicat.
Proprietar persoana juridic ( pret+TVA).
Pentru informații suplimentare și stabilirea unei vizionări, vă invităm să ne contactați.