




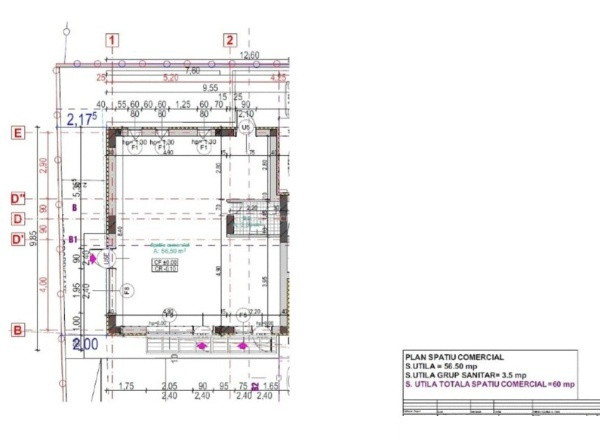
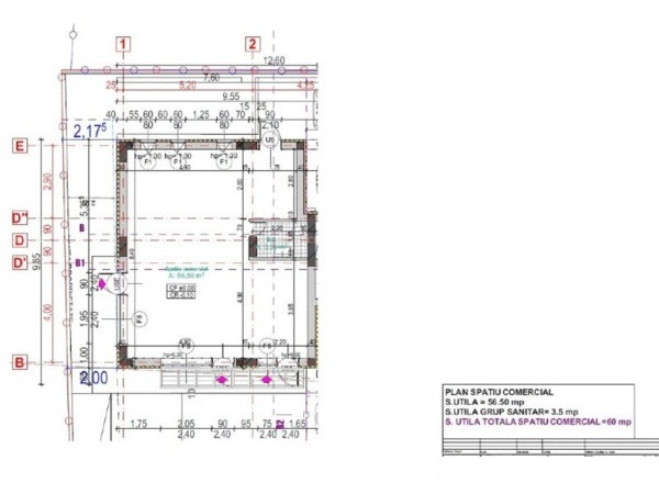
Agentia Zig-Zag va propune spre inchiriere un spațiu comercial cu destinatie specifica in acte, situat in zona Kamsas, stradal Baba Novac , locatie cu trafic intens, vizibilitate foarte bună, acces facil auto și pietonal.
Suprafață utilă de 65 mp. este compusa din open space ce se poate personaliza dupa preferinte si grup sanitar propriu.
Dispune de de acces direct din stradă, toate utilitățile necesate desfasurarii activitatii (apa, curent , gaz) contorizate separat .
Deasemeni, spatiul beneficiaza de 2 LOCURI DE PARCARE IN PROPRIETATE.
Se preteaza desfasurarii unie game largi de activitati: salon înfrumusețare cosmetică coafor, farmacie, cabinet medical, birou , showroom etc.
utilități separate: curent, apă, gaz