





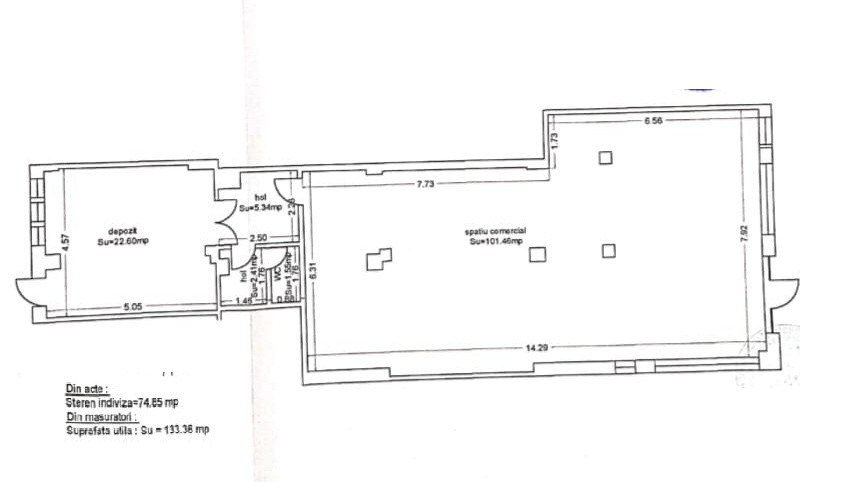
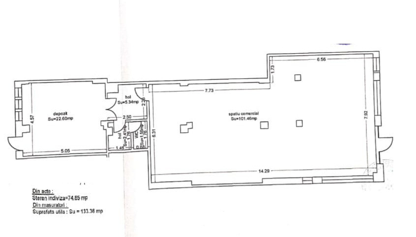
Agentia Zig-Zag va ofera spre inchiriere un spațiu comercial situat in zona Inel II, areal comercial, trazitat intens , atat auto, cat si pietonal.
Se distinge printr-o suprafata generoasa de 133 mp. si o vitrina /front stradala de 15 m. si acces secundar prin spate cu rampa de aprovizionare.
Dotări și utilități:
-Pardoseală ceramică;
-Tavan fals;
-Tâmplărie aluminiu;
-Gaze naturale;
-Centrală termică pe gaz;
-Alimentare electrică trifazată – 380V;
-Spațiul este funcțional și pregătit pentru utilizare imediată;
-Grup sanitar propiu.
Avantaje competitive:
-Poziționare excelentă, pe Strada Eliberării – cea mai circulată zonă pietonală a cartierului
-Trafic pietonal și auto intens
-Vizibilitate maximă și expunere foarte bună
-Configurație flexibilă, ușor de compartimentat
-Potrivit pentru o gamă largă de activități comerciale : showroom, birouri, servicii, clinică, salon, bancă, retail, food sau orice alte activități similare.
Proprietar persoana juridica (chirie nepurtatoare de TVA).