








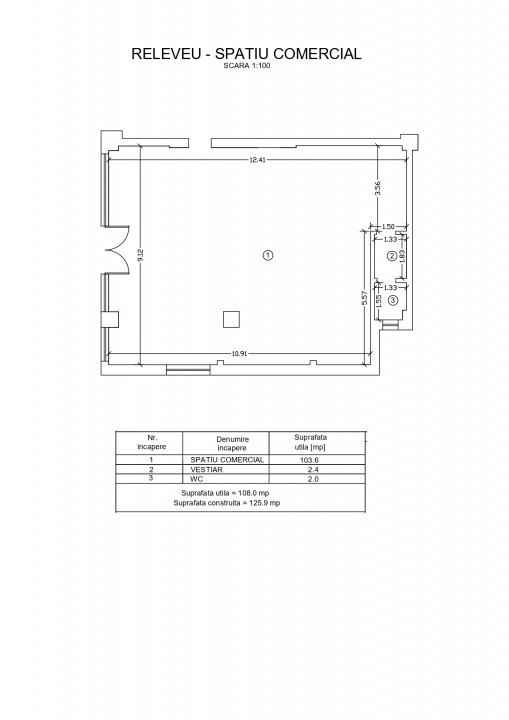
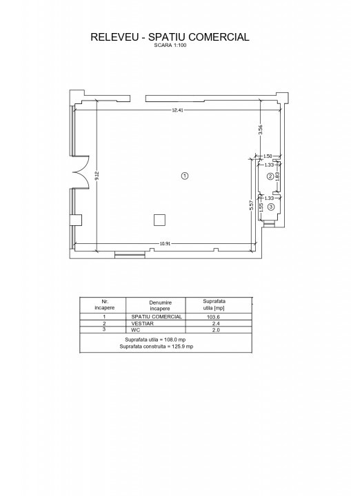
Agentia Zig-Zag va ofera spre inchiriere un spatiu comercial, cu destinatie specifica, constructie 2024, situat in zona Faleza Nord, zonă cu trafic intens, atât pietonal, cât și auto. Proximitatea față de una dintre cele mai circulate artere ale orașului îl fac ideal desfasurarii diverselor activități comerciale ( retail, alimentație publică, servicii etc)/birouri/reprezentanta.
Suprafata utila de 108 mp. de tip open-space ofera posibilitatea adaptarii la nevoile afacerii, prin (re)compartimentarii . Fațadă generoasă de 11 m., cu vitrine mari oferă o vizibilitate excelentă , iar aceesul direct din strada constituie un atu.
Este racordat la toate utilitatile necesare desfasurarii activitatii (apa, curent, gaze, incalzire prin pardoseala) si contorizarea se face separat pentru o eficientizare a costurilor.
Proprietar persoana fizica (chirie nepurtatoare de TVA).
Dacă ai nevoie de informații suplimentare sau vrei să specifici detalii adiționale, sunt aici să te ajut