











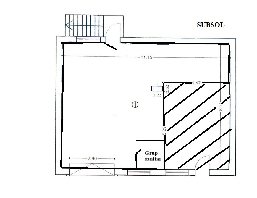
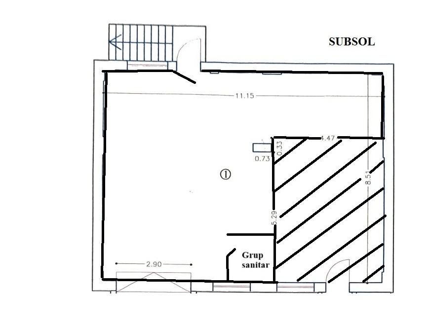
Agentia Zig-Zag va ofera spre inchiriere un spatiu amplasat in zona City Mall, situat la demisolul unei cladiri constructie 2022.
Suprafata utila de 84 mp. reprezinta un open space cu posibilitate de compartimentarein functie de necesitatile clientulu. Accesul se realizeaza direct din strada.
Beneficiza de toate utilitatile necesare desfasurarii unei palete largi de activitati (excluzand alimentatie publica). Dispune de contorizare separata ( apa, energie electrica, gaze).
Este amplasat intr-o zona traficata intens , atat auto cat si pietonal, foarte facil reperabila.
Proprieta persoana juridica ( chirie nepurtatoare de TVA).