










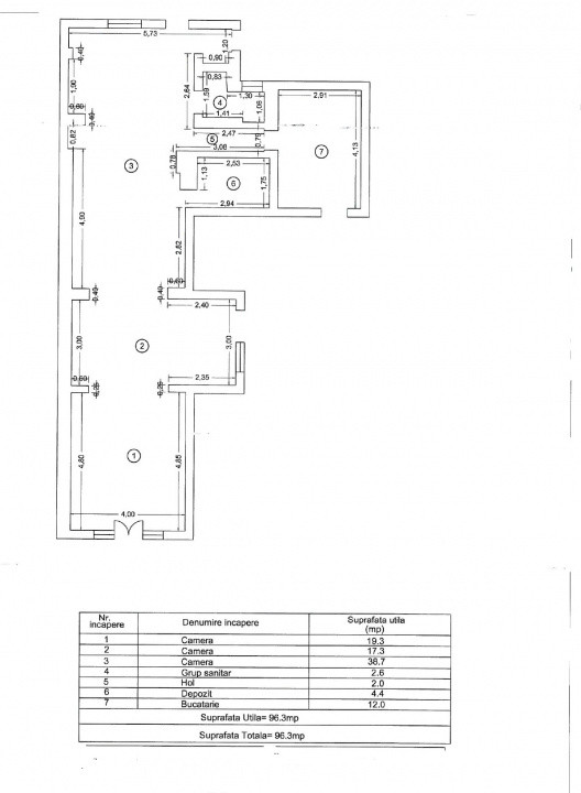
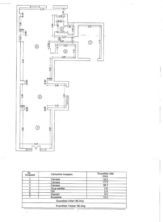
Agentia imobiliara Zig-Zag va ofera un spațiu de birouri sau comercial cu o suprafata utila de 96 mp. si o curte betonata aferenta de 400 mp.
Este potrivit pentru diverse activități de business. Spațiul are un design simplu, cu pereți gri. Este perfect pentru a-ți dezvolta afacerea într-un mediu modern. Locația este foarte accesibilă, aproape de centre culturale și de divertisment. În apropiere se află muzee, teatre și grădini zoologice. Există multiple opțiuni de restaurant și cafenele în zonă.
Serviciile medicale și farmaciile sunt la doar câteva minute. Sunt disponibile și bănci, saloane de înfrumusețare și oficiu poștal. La shopping, găsești supermarketuri și mall-uri mari în apropiere. Transportul public este bine dezvoltat, cu stații de autobuz aproape. Accesul rapid te ajută să ajungi oriunde în oraș.
Proprietar persoana fizica ( chirie nepurtatoare de TVA).