



























Agentia Zig-Zag va propune spre inchiriere un imobil situat in zona 0 a orasului Constanta, pe o strada linistita. Datorita proximitatii acestuia de toate punctele de interes ale orasului, mijloace de trasnport in comun, spatii de parcare atat in fata imobilului dar si in curte, aceasta proprietate este ideala pentru birouri / clinica medicala etc.
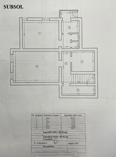
Imobilul este amplasat pe un teren cu o suprafata generoasa de 460 mp. cu deschidere de 16 m. Suprafata totala de 530 mp., respectiv 420 mp. utilia, este structurata pe 4 nivele (S+P+1+M) , astfel:
- subsol - 87 mp. - 2 camere (20 mp. fiecare), spatii depozitare in suprafata de 30 mp, , putand fi utilizat cu destinatie birouri sau zona de arhiva , avand inaltime adecvata;
- parter- 174 mp. (suprafata utila 132 mp.) - 3 camere ce pot crea o zona open space sau pot compartimentata, in suprafata totala de 70 mp , grupuri sanitare , bucatarie si doua terase totalizand 43 mp.;
- etajul 1 - 135 mp. (suprafata utila 113 mp.) - 3 camere, bucatarie, grupuri sanitare, 2 balcoane si terasa;
- mansarda -87 mp.- open space 59 mp , un birou de 10 mp si baie si o terasa generoasa de 45 mp.
Imobilul se inchiriaza nemobilat si dispune de 2 cai de acces ( direct din strada si de pe casa scarii).
Proprietr persoana fizica (chirie nepurtatoare de TVA).