









Agentia Zig-Zag va propune spre închiriere un spațiu generos destinat activităților de BIROURI , situat în zona ICIL, una dintre zonele bine conectate ale orașului, cu acces rapid din toate cartierele și vizibilitate foarte bună.
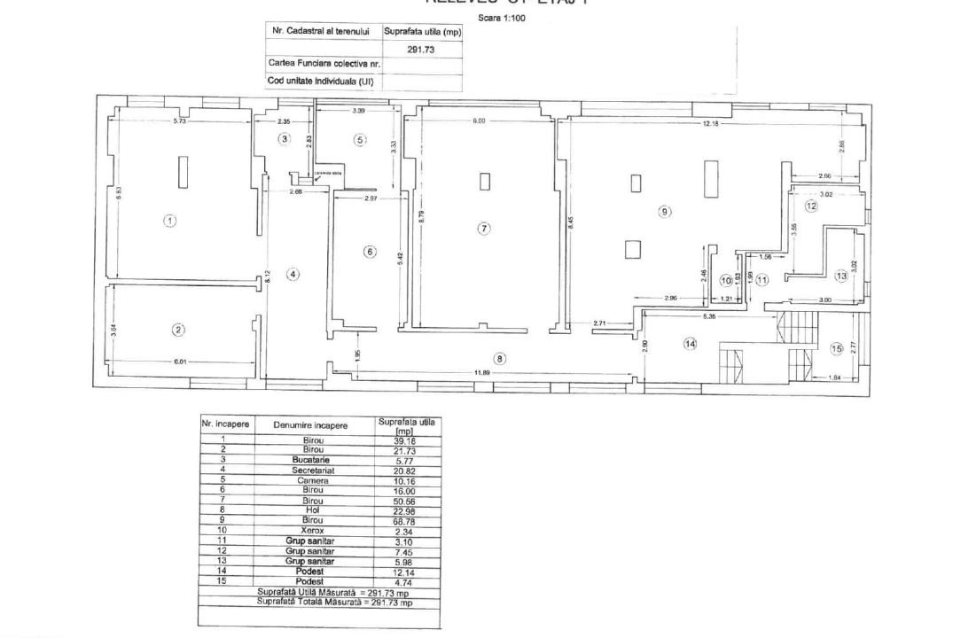
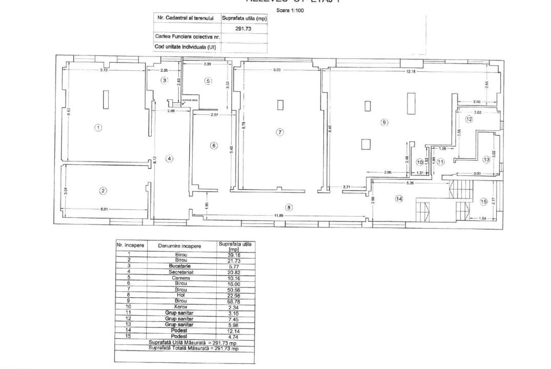
Spațiul este amplasat la etajul 1, într-o clădire cu destinație exclusiv administrativă / birouri, oferind un cadru profesional și funcțional pentru desfășurarea activităților de business. Suprafața totală este de aproximativ 290 mp, compartimentarea fiind gândită pentru a răspunde nevoilor unor echipe sau activități care necesită mai multe zone de lucru.
Compartimentare:
- 6 birouri individuale, cu suprafețe variate (aprox. 21 mp, 40 mp și 50 mp), potrivite pentru departamente, cabinete sau spații de lucru separate ;
- 3 grupuri sanitare ;
- oficiu / zonă pentru bucătărie ;
- zone de circulație și spații auxiliare .
Avantaje și facilități
- clădire destinată exclusiv activităților administrative și de birouri ;
- curte generoasă, cu posibilitate de parcare proprie pentru angajați sau clienți ;
- acces facil din toate punctele orașului, datorită poziționării într-o zonă centrală și bine conectată ;
- locație ușor de reperat, ideală pentru activități care implică relație directă cu clienții ;
- zonă cu trafic intens, ceea ce oferă vizibilitate și accesibilitate .
Destinații ideale: sediu firmă / birouri administrative, birouri pentru avocatură, contabilitate, consultanță, IT, centru de servicii sau training etc.
Proprietar persoană juridică – chiria este nepurtătoare de TVA.
Acest spațiu reprezintă o soluție excelentă pentru companii sau activități profesionale care caută un sediu spațios, bine compartimentat și ușor accesibil, într-o zonă cunoscută a orașului.
📞 Pentru informații suplimentare și programarea unei vizionări, vă stăm la dispoziție.