
















Agentia imobiliara Zig-Zag va propune spre închiriere un spațiu de birouri amplasat in cladire moderna cu caracter specific, si standarde ridicate de confort, situat pe Bulevardul Mamaia - zona Delfinariu.
Amplasamentul faciliteaza reperarea facila , imaginea corporativa si accesul catre toate institutiile de interes public si comercial.
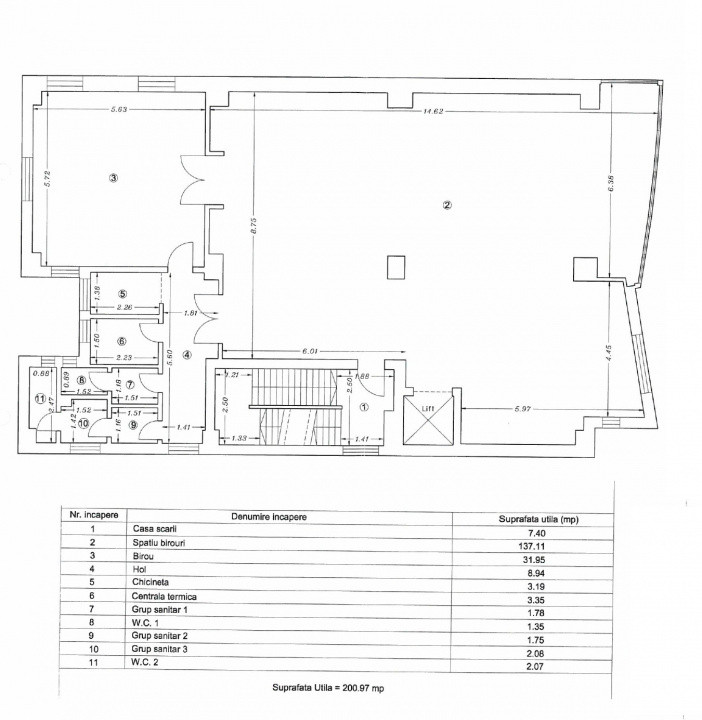
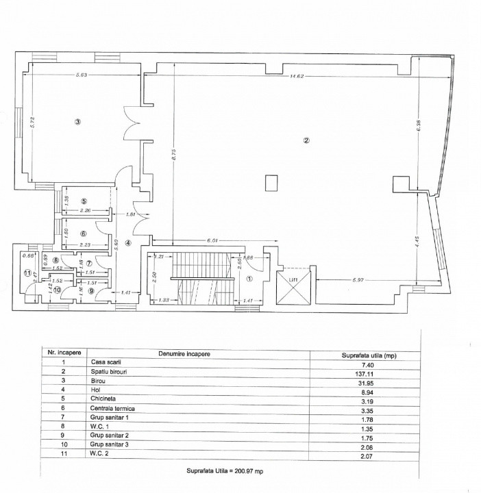
Spatiul dispune de o suprafata utila de 200 mp. , compartimentata cu ajutorul peretilor de sticla, astfel:
- open space generos, multiple posibilitati de structurare a posturilor de lucru;
- 2 birouri/sali de conferinta/meeting;
- birou directorial;
- oficiu/chicineta ;
- 2 grupuri sanitare;
- camera tehnica.
Compartimentarea eficienta cu ajutorul peretilor de sticla, confera luminozitate spatiului si flexibilitate in vederea unei eventuale restructurari/reamenajari .
Pe lângă multitudinea dotărilor de top, cladirea dispune de faţad realizate din perete cortină tip Schuco, oferind astfel calitate şi estetică . Atât tâmplăria cât şi peretele cortină au un bun coeficient de transfer termic , amănunt ce are o deosebită importanţă în economia generală a costurilor de întreţinere ale clădirii.
Beneficii:
- intimitatea spatiului de lucru, fiind amplasat pe intregul etaj al cladirii;
- acces securizat in cladire, precum si in incinta biroului;
- contorizare separata a utilitatilor ;
- in costul chiriei este inclus MOBILIERUL si dotarile existente ( in functie de preferintele chiriasului);
- posibilitatea integrarii costului UTILITATILOR in cuantumul chiriei;
Spatiul are un caracter versatil, pretabil desfasurarii unei game largi de activitati: sediu de firmă, companie IT, call-center , firmă de consultanță, birou avocatură, birou notarial, firmă de arhitectură, marketing, HR, financiar-contabil, agenție imobiliară, centru de training, sau orice entitate care dorește reprezentativitate, confort și un spațiu complet echipat.
Proprietar persoana fizica (chirie nepurtatoare de TVA).
Pentru informații suplimentare, detalii privind condițiile de închiriere sau pentru programarea unei vizionări, vă invităm să ne contactați.
Agenția Zig-Zag – sprijin profesionist pentru găsirea spațiului potrivit afacerii dumneavoastră .