


















Agentia Zig-Zag va propune spre închiriere spații de birouri moderne, situate într-o clădire nouă, finalizată în 2025, proiectată special pentru activități administrative, profesionale și de business.Imobilul beneficiază de o poziționare excelentă, la o arteră principală a orașului, ceea ce oferă vizibilitate foarte bună, acces facil și o localizare ușor de reperat atât pentru angajați, cât și pentru clienți sau colaboratori.
Spatiile sunt in curs de amanajare si pot fi predate la data de 1.06.2026.
spatiu 2 – 70 mp. - 3 camere – 70 mp., 2 birouri spațioase (18 mp și 20 mp.) , birou secundar / oficiu , chicinetă (8 mp.) amenajata, grup sanitar propriu, balcon generos (10 mp.) , 1 LOC DE PARCARE.
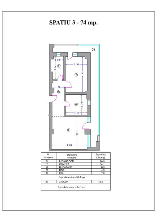
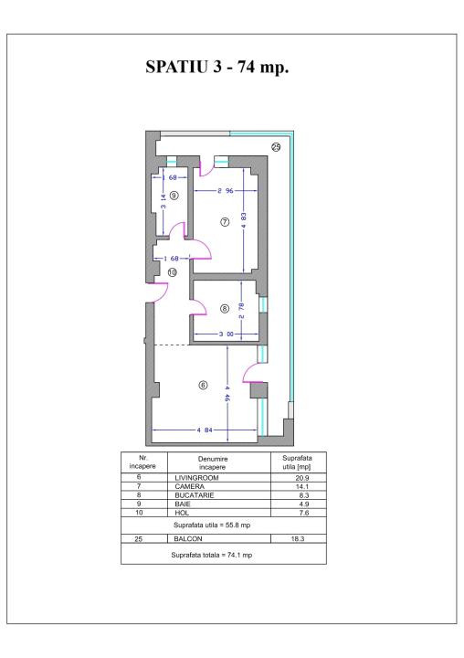
spațiu 3 – 74 mp – 3 camere - 2 birouri spațioase ( 14 mp.și 21 mp.),birou secundar / oficiu , chicinetă (8 mp.) amenajata , grup sanitar propriu, balcon generos (18 mp.), 1 LOC DE PARCARE .
Prin poziționare, dotări și compartimentare, aceste spații oferă un mediu de lucru modern, confortabil și reprezentativ, potrivit companiilor care doresc să își desfășoare activitatea într-o clădire nouă, bine conectată și ușor accesibilă.
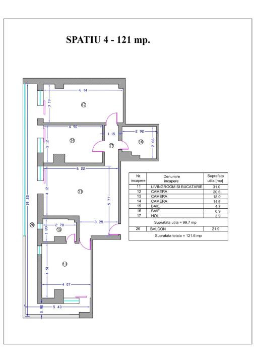
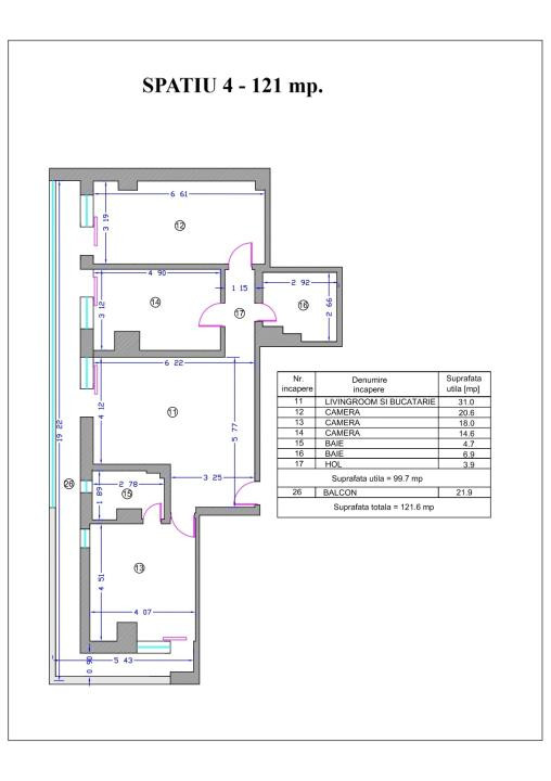
Spațiile disponibile sunt luminoase, bine compartimentate și flexibile, cu suprafețe cuprinse între 70 mp și 121 mp, fiind organizate în 2 până la 4 camere, în funcție de configurația fiecărei unități. Compartimentarea permite adaptarea spațiului la diverse tipuri de activități, oferind un mediu de lucru eficient și confortabil, astfel încât să poată răspunde nevoilor diferitelor tipuri de activități profesionale – de la echipe mici până la companii cu mai multe departamente, astfel încât să poată răspunde nevoilor diferitelor tipuri de activități profesionale – de la echipe mici până la companii cu mai multe departamente.
Caracteristici și facilități ale clădirii :
- clădire nouă, finalizată în 2025, cu standarde moderne pentru activități de birouri ;
- lift pentru acces facil între niveluri ;
- LOCURI DE PARCARE proprii, atât subterane, cât și supraterane;
- spații luminoase și bine organizate ;
- acces facil din principalele zone ale orașului ;
- poziționare la arteră principală, cu vizibilitate și accesibilitate ridicate ;
- imobil ușor de reperat, ideal pentru activități care implică relația cu publicul .
Avantaje pentru companii :
- toate utilitatile necesare desfasurarii activitatii, refacturabile;
- posibilitatea alegerii suprafeței potrivite în funcție de dimensiunea echipei ;
- spații moderne, pregătite pentru activitate imediată ;
- imagine profesională oferită de o clădire nouă și reprezentativă ;
- confort pentru angajați și acces facil pentru clienți ;
Proprietar persoana juridica (chirie nepurtatoare de TVA). Utilitati refacturabile.
Pentru informații suplimentare și programarea unei vizionări, vă stăm la dispoziție.