




















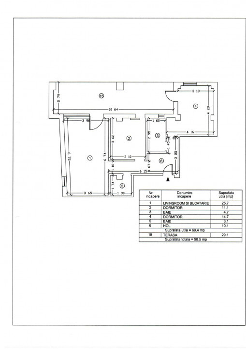
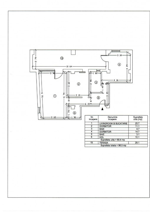
Agentia Zig-ZAG va propune spre inchiriere un spatiu situat in zona Capitol - bd. Mamaia, IDEAL BIROURI cu o suprafata utila deCapitol - bd. Mamaia, spatii IDEAL BIROURI cu o suprafata utila de 70 mp., compartimentata in 3 camere, 2 grupuri sanitare, bucatarie (mobilata, utilata) si TERASA AMENAJATA 30 mp., amplasat in cladire cu destinatie exclusiva de birouri.
Spatiul este finisat integral si dispune de contorizare separata ( apa, curent, gaz), refacturarea utilitatilor si multiple facilitati ( lift, interfon, aer conditionat etc.).
Proprietar persoana juridica ( chirie nepurtatoare de TVA).