














Agentia Zig-Zag va ofera sper inchiriere spatii de birouri pozitionate in zona DACIA-TOMIS III , amplasate in imobil constructie 2023 cu destinatie mixta (birou/rezidential) ce reprezintă confort, design și inovație.
Imobilul cuprinde spatii de birouri cu compartimentări generoase, camere înalte și suprafețe vitrate mari. Alegerea unui spatiu implică un grad sporit de confort și siguranță. Datorită amplasării oferă acces facil către: City Park Mall, Parcul Tăbăcăriei, Piața Tomis III, instituții bancare, mijloace de transport în comun, magazine, etc.
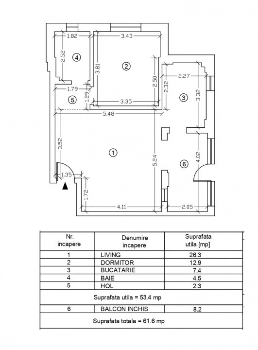
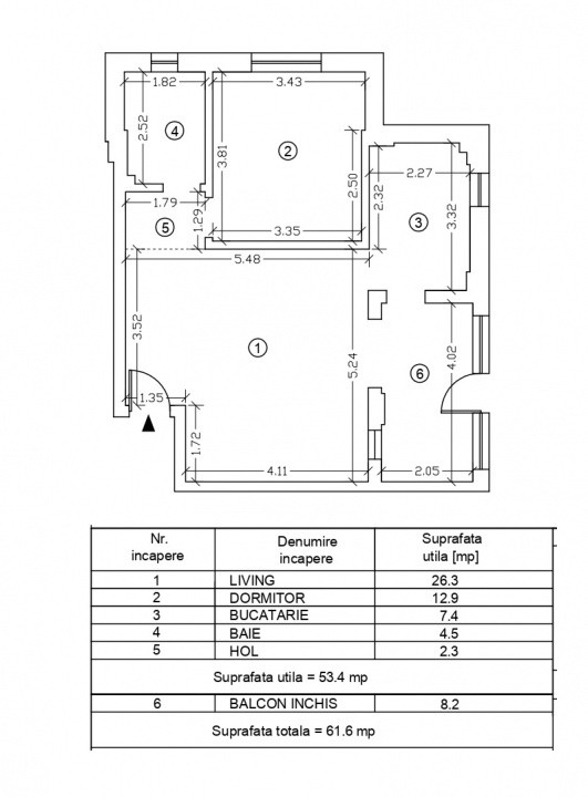
Spatiul in cauza dispune de o suparafata utila de 61 mp., compartimentata in 2 camere (birou si open space 42 mp.) , grup sanitar si curte aferenta cu acces direct din imobil. Fiecarui spatiu ii este alocat un LOC DE PARCARE PROPRIU in curtea aferenta cladirii.
Beneficiaza de toate utilitatile necesare desfasurarii activitatii contorizate separat (incalzire centrala gaze, 1 aparat de aer conditionat) si refacturabile.
Fiind finalizat in 2023, dispune de e dotări și finisaje noi si de calitate: tâmplărie PVC Salamander Bluevolution 82, geam tripan Low-E, culoare gri antracit, ușă metalică antiefracție, bine antifonată, tocuri îmbrăcate în lemn, centrală Vaillant 28KW, încălzire în pardoseală cu distribuitoare pentru fiecare cameră, baie și hol, distribuitoare pentru apă caldă și rece, separat pentru fiecare baie și bucătărie, parchet Egger – special pentru încălzire în pardoseală, gresie, faianță – Marazzi, uși de interior din MDF vopsit – Pinum / Porta Doors, băi hidroizolate cu bandă Mapei, dotate cu obiecte sanitare: bazin incastrat Grohe, cadă, set WC și obiecte sanitare Roca, rigolă de duș din aluminiu, instalația electrică cu doze modulare Gewiss, terase cu parapeți din alubond și sticlă securizată, casa scării dotată cu: marmură (plăci mari), balustradă din lemn și fier, sistem de iluminat, lift Schindler, spațiu de recreere în aer liber, dotat cu elemente de peisagistica.
Propritar persoana juridica (pret +TVA).
Contractul de inchiriere se realizeaza pe o perioada de 3 ani.
La semnarea contractului se percepe contravaloarea unei luni in avans (prima luna de chirie) si una reprezentand garantia .
Comision Agentie Zig -Zag ( 50% din contravaloarea unei luni de chirie).