










Agentia Zig-Zag va ofera spre inchiriere un spatiu IDEAL BIROURI amplasat pe bd. Mamaia, in cladire cu destinatie exclusiva de birouri.
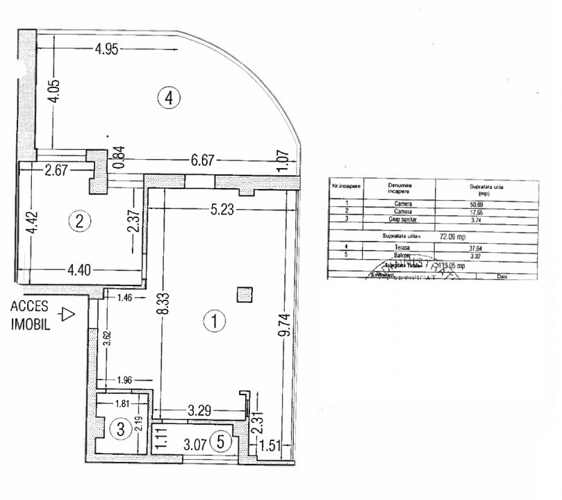
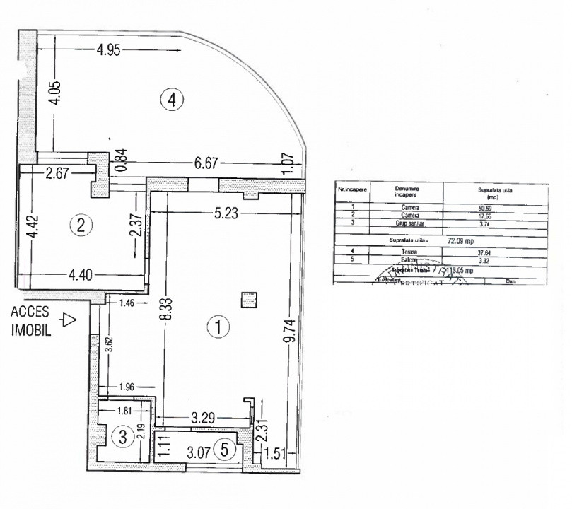
Suprafata totala de 113 mp, din care 75 mp. utili , este compartimentata intr-un open space generos , birou directorial, oficiu, grup sanitar si terasa 38 mp.
Spatiul a fost intergral renovat in 2024. Fiind situat la etaj superior si avand o suprafata vitrata foarte generoasa, beneficiaza de priveliste asupra orasului, dar si de lumina naturala intensa, pe tot parcursul zilei.
Dispune de toate utilitatile necesare activitatii, incalzire centrala gaze .
Pretul chiriei include utilitatile, (apa, curent) exceptand gazul, care se plateste separat, biroul avand contorizare separata.
Proprietar persoana juridica (chirie nepurtatoare de TVA).
Conditii de plata: 1 luna avans + 1 luna garantie.
Pentru informații suplimentare, detalii privind condițiile de închiriere sau pentru programarea unei vizionări, vă invităm să ne contactați.
Agenția Zig-Zag – sprijin profesionist pentru găsirea spațiului potrivit afacerii dumneavoastră .