
















Agenția Zig-Zag vă propune spre închiriere un imobil individual P+1, complet renovat, situat în zona Tomis II, pretabil pentru sediu companie, centru administrativ sau activități profesionale/educationale.
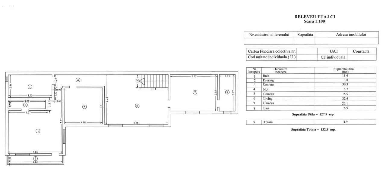
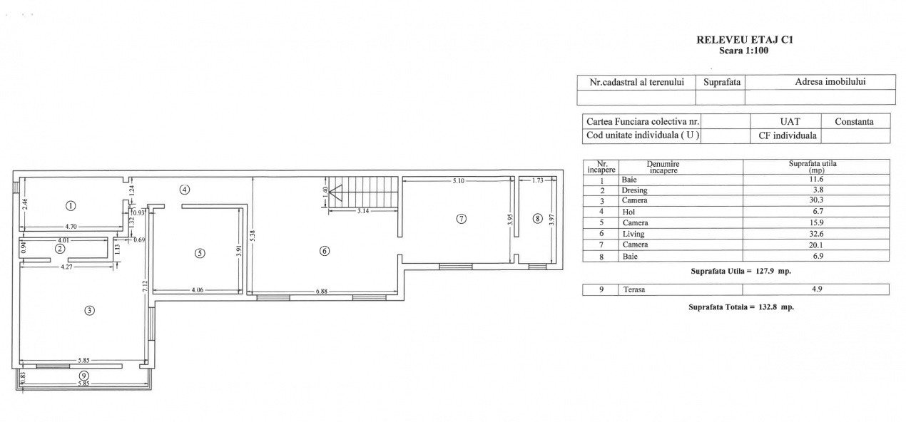
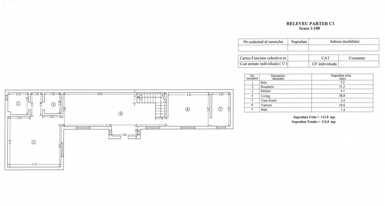
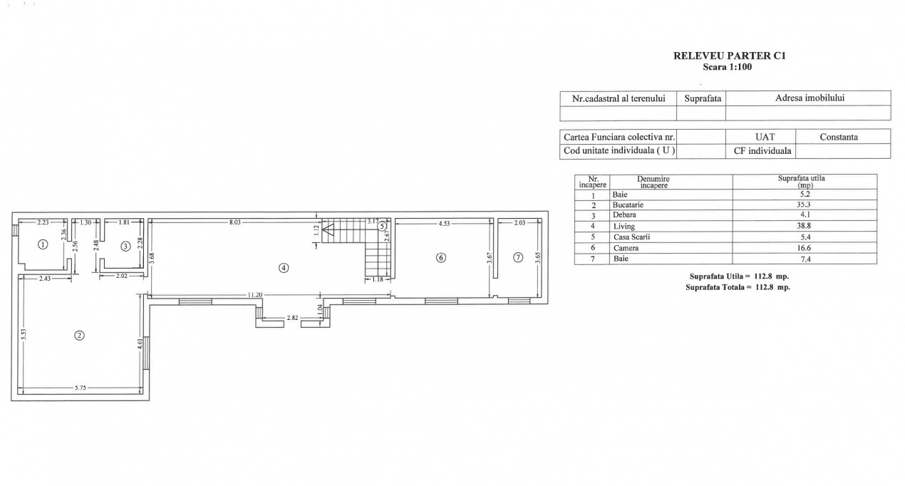
Cu o suprafață utila totală de 240 mp. , proprietatea beneficiază de compartimentare eficientă, camere decomandate și spații generoase, adaptabile nevoilor operaționale.
- Parter – 112 mp. - compus din 2 birouri generoase de 35, respectiv 38 mp., 1 birou directorial 16 mp., grup saniatr, spatii aditionale (arhiva, depozitare, camera tehnica/server);
- Etaj - 128 mp. - open space 32 mp., birouri individuale ( 15 mp, 20 mp, 30 mp.), două grupuri sanitare;
- Curte proprie 148 mp.
Spațiile sunt luminoase, bine proporționate și potrivite pentru birouri executive sau departamente distincte. Imobilul oferă flexibilitate în organizarea echipelor, fiind ideal pentru zonă operațională, call center, IT, contabilitate sau consultanță.
Cladirea ofera multiple avantaje cheie:renovare recenta, compartimentare funcțională, suprafață generoasă, amplasament central, acces facil, conferind un potențial excelent pentru activități de birouri, 2 fronturi stradale, cu o deschidere totala de 35 ml ce confera vizibilitate excelenta si acces facil, localizare strategica , aproape de puncte de interes, institutii, mijloace de transport si zone comerciale.
Imobilul oferă cadrul potrivit pentru o companie care își dorește un spațiu organizat, reprezentativ și eficient. Proprietar persoana fizica (chirie nepurtatoare de TVA).
Pentru detalii suplimentare și programarea unei vizionări, vă invităm să contactați Zig-Zag Intermedieri Imobiliare.
Profesionalism. Structură. Vizibilitate.