




















Agentia Zig-Zag va propune spre vanzare un apartament cu 3 camere care transmite din prima senzatia de “acasa”, situat in cartierul Tomis Plus – o zona moderna, aerisita si tot mai cautata din Constanta.
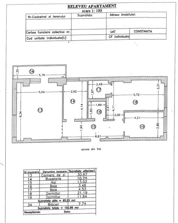
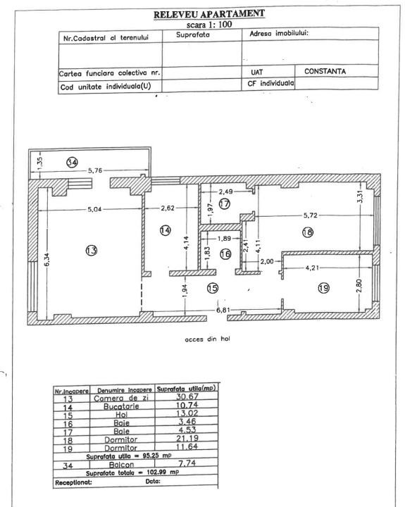
Apartamentul are o suprafata utila generoasa de 95 mp, completata de un balcon de 8 mp, un loc perfect pentru cafeaua de dimineata sau pentru cateva momente de relaxare dupa o zi aglomerata. Situat la etajul 6 din 9, intr-un imobil dotat cu lift, locuinta beneficiaza de lumina naturala si de o priveliste deschisa.
Caracteristici principale:
- suprafata totala 103 mp. + loc parcare subteran;
- suprafata utila: 95 mp.;
- balcon: 8 mp.;
- 3 camere decomandate;
- 2 grupuri sanitare;
- bucatarie inchisa;
- etaj 6/9, imobil prevazut cu lift;
- se vinde complet mobilat si utilat.
- pret 175.000 euro.
Interiorul este decomandat si bine organizat, astfel incat fiecare spatiu are rolul lui clar: livingul primitor pentru timpul petrecut cu familia sau prietenii, dormitoarele confortabile pentru odihna, iar bucataria inchisa pastreaza linistea si ordinea in restul casei. Cele doua grupuri sanitare aduc un plus de confort, mai ales pentru o familie.
Unul dintre avantajele importante este faptul ca apartamentul se vinde complet mobilat si utilat, exact asa cum il vedeti in fotografii. Practic, noul proprietar poate veni doar cu lucrurile personale si poate incepe imediat un nou capitol.
In plus, locul de parcare propriu situat la demisol ofera siguranta si confort – masina este protejata, iar tu stii ca ai mereu locul tau, indiferent de ora sau de vreme.
Cartierul Tomis Plus ofera un stil de viata confortabil, cu supermarketuri, farmacii, cafenele, sali de fitness, scoli si gradinite la doar cateva minute distanta, ceea ce face ca locatia sa fie potrivita atat pentru locuit, cat si pentru investitie.
Pret: 175.000 euro
Pentru mai multe informatii sau pentru programarea unei vizionari, Agentia Zig-Zag va sta cu placere la dispozitie.